Hauptnavigation der Seite anspringen

Inhaltsbereich der Seite anspringen

Unternavigation der Seite anspringen

rechte Seitenleiste der Seite anspringen

Footer der Seite anspringen

Zur Startseite von Markt Steinwiesen
  • Kontakt
  • Impressum
  • Aktuelles
    • Aktuelles aus dem Rathaus
    • Aktuelle Meldungen
    • Informationen aus dem Einwohnermeldeamt
    • Veranstaltungen
    • Fundsachen
    • Breitbandförderung
      • Bayerische Gigabitrichtlinie (BayGibitR-2) (2)
    • Firmenbroschüre - Leben und Arbeiten in Steinwiesen
  • Rathaus
    • Grußwort des Bürgermeisters
    • Ansprechpartner und Öffnungszeiten
    • Infos zu Dienstleistungen, Abgaben und Steuern
      • Personalausweis
      • Reisepass
      • Gewerbemeldungen
      • Sonstige Amtshandlungen
      • Grundsteuer
      • Hundesteuer
    • Bürgerservice-Portal
    • Marktgemeinderat
      • Mitglieder
      • Sitzungsplan
    • Das Steinwiesener Mitteilungsblatt
    • Kommunalentwicklung
    • Bauhof Steinwiesen
    • Wertstoffhof
    • Kulturhalle Markt Steinwiesen
    • Meldung defekter Straßenbeleuchtung
    • Markt Steinwiesen - App
    • Verordnungen / Satzungen
    • Bürgerstiftung Steinwiesen
    • Bekanntmachung WRV Rögnitz
    • Bekanntmachung vorhabenbezogener Bebauungsplan Nurn
  • Leben in Steinwiesen
    • Zahlen, Daten und Fakten
    • Gesundheit und Soziales
      • Ärzte und Praxen
      • Sozialstation
      • Heilpraktiker
      • Das VitalWerk
    • Gastronomie
      • Steinwiesen
      • Nurn
    • Grundschule Steinwiesen
    • Kindergärten
    • Kirchliche Einrichtungen
      • Pfarrei Mariae Geburt Steinwiesen
      • Kuratie St. Michael Nurn
      • Pfarrei St. Stephan Birnbaum
      • Pfarrei St. Laurentius Neufang
      • ev.-luth. St. Johanniskirche Steinwiesen
    • Vereine
      • Steinwiesen
      • Neufang
      • Nurn
      • Birnbaum
    • Caritas-Stützpunkt "In der Heimat wohnen"
    • VHS Außenstelle Steinwiesen
    • Der Rodachtaler
  • Freizeit
    • Erlebnisbad Steinwiesen
      • Erlebnisbad und Sauna
      • Freibad
      • Öffnungszeiten und Preise außerhalb der Freibadsaison
      • Haus- und Badeordnung
      • Gutscheine
      • Kindergeburtstag
    • Sehenswürdigkeiten
      • Teichmühle Steinwiesen
      • Ködeltalsperre
      • Heimatmuseum
      • Infozentrum Naturpark Frankenwald
      • Birnbaumer Wasser- und Aussichtsturm
    • Lieblingsplatz Oberes Rodachtal
    • Wandern und Nordic Walking
  • Bauen – Sanieren – Wohnen
    • Immobilienlotsen
    • Förderung und Sanierung von Immobilien
      • Das Interkommunale Förderprogramm im Oberen Rodachtal
      • INFO - Steuervorteile bei Sanierungsmaßnahmen
      • Was tun mit einer leerstehenden Immobilie?
      • Gestaltungsfibel – Gestalterischer Leitfaden zum Kommunalen Förderprogramm
      • Sanierungserstberatung durch Fachexperten
    • Immobilien - Grundstücke - Wohnungen
      • Zu verkaufen
      • Zu vermieten / verpachten
      • Kaufgesuche
    • Klimaschutz-Beratung
  • Tourismus
  • Bürgerservice-Portal
Leider haben wir keinen Alternativtext zu diesem Bild, aber wir arbeiten daran.
Leider haben wir keinen Alternativtext zu diesem Bild, aber wir arbeiten daran.
Leider haben wir keinen Alternativtext zu diesem Bild, aber wir arbeiten daran.
Leider haben wir keinen Alternativtext zu diesem Bild, aber wir arbeiten daran.
Leider haben wir keinen Alternativtext zu diesem Bild, aber wir arbeiten daran.
Vorheriger Slide
Nächster Slide
  1. Start
  2. Rathaus
  3. Bekanntmachung vorhabenbezogener Bebauungsplan Nurn
Seitenleiste Links
  • Grußwort des Bürgermeisters
  • Ansprechpartner und Öffnungszeiten
  • Infos zu Dienstleistungen, Abgaben und Steuern
  • Bürgerservice-Portal
  • Marktgemeinderat
  • Das Steinwiesener Mitteilungsblatt
  • Kommunalentwicklung
  • Bauhof Steinwiesen
  • Wertstoffhof
  • Kulturhalle Markt Steinwiesen
  • Meldung defekter Straßenbeleuchtung
  • Markt Steinwiesen - App
  • Verordnungen / Satzungen
  • Bürgerstiftung Steinwiesen
  • Bekanntmachung WRV Rögnitz
  • Bekanntmachung vorhabenbezogener Bebauungsplan Nurn

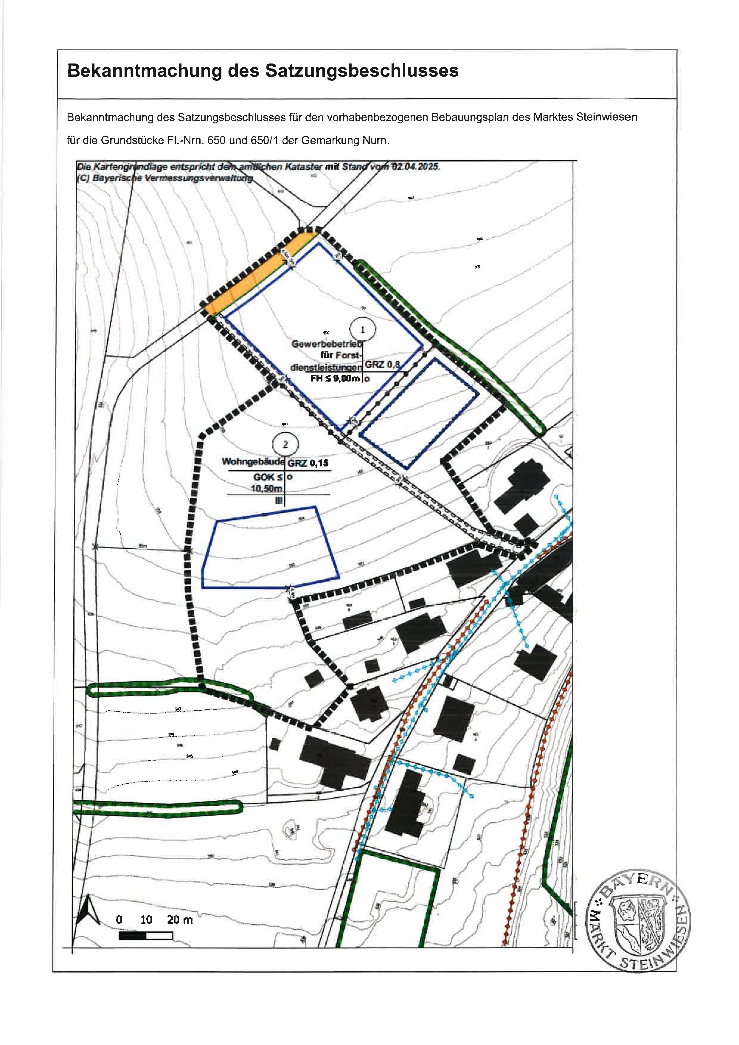
Bekanntmachung vorhabenbezogener Bebauungsplan Nurn

Vorhabenbezogener Bebauungsplan Nurn

  • Bekanntmachung Satzung Nurn

Seitenleiste Rechts

Markt Steinwiesen bei Facebook

Find us on Facebook.png

Bürgerinfoportal

Bürgerinfo

Ratsinformationssystem Markt Steinwiesen


Fahrplan Buslinie Steinwiesen - Kronach

Mobilitätszentrale.jpg

Weiterleitung zu den aktuellen Fahrplänen der Mobilitätszentrale.


Footer

Wichtige Links

  • Kontakt
  • Impressum
  • Datenschutzerklärung

Öffnungszeiten

Montag - Dienstag 07:30 - 12:00 Uhr
12:30 - 16:00 Uhr
Mittwoch 07:30 - 12:00 Uhr
nachmittags nach Terminvereinbarung
Donnerstag 07:30 - 12:00 Uhr
13:00 - 18:00 Uhr
Freitag 07:30 - 13:00 Uhr

Kontakt

Kirchstr. 4
96349 Steinwiesen
Adresse auf Karte anzeigen
Telefon: 09262/99150
E-Mail: info@steinwiesen.de

CMS, © 2025 digitalfabriX

Seitenanfang
30
14245--2029127266-0

Cookie-Einstellungen

  • Datenschutzerklärung
Wir verwenden Cookies, um Ihnen ein optimales Webseiten-Erlebnis zu bieten. Dazu zählen Cookies, die für den Betrieb der Seite notwendig sind, sowie solche, die lediglich zu anonymen Statistikzwecken, für Komforteinstellungen oder zur Anzeige personalisierter Inhalte genutzt werden. Sie können selbst entscheiden, welche Kategorien Sie zulassen möchten. Bitte beachten Sie, dass auf Basis Ihrer Einstellungen womöglich nicht mehr alle Funktionalitäten der Seite zur Verfügung stehen. Die von Ihnen getroffene Auswahl kann über die Seite Datenschutzerklärung nachträglich geändert werden.
Sie haben die personalisierten Cookies nicht ausgewählt. Um diese Seite betreten zu können, müssen sie diese per Auswahl zulassen.

Notwendig:
Diese Cookies sind zur Funktion der Website erforderlich und können in Ihren Systemen nicht deaktiviert werden. In der Regel werden diese Cookies nur als Reaktion auf von Ihnen getätigte Aktionen gesetzt, die einer Dienstanforderung entsprechen, wie etwa dem Festlegen Ihrer Datenschutzeinstellungen, dem Anmelden oder dem Ausfüllen von Formularen. Sie können Ihren Browser so einstellen, dass diese Cookies blockiert oder Sie über diese Cookies benachrichtigt werden. Einige Bereiche der Website funktionieren dann aber nicht. Diese Cookies speichern keine personenbezogenen Daten.

Name: ASP.NET_SessionId

Dauer: Bis zum Beenden der Browsersession

Art: 1st Party

Kategorie: Notwendig

Beschreibung: Sitzungscookie für allgemeine Plattformen, der von Websites verwendet wird, die mit Microsoft .NET-basierten Technologien geschrieben wurden. Wird normalerweise verwendet, um eine anonymisierte Benutzersitzung durch den Server aufrechtzuerhalten.

Name: __RequestVerificationToken

Dauer: Bis zum Beenden der Browsersession

Art: 1st Party

Kategorie: Notwendig

Beschreibung: Wird vom System gesetzt, sobald ein Anmeldeformular auf der Seite angezeigt wird, es werden noch keine Inhalte geschrieben.

Name: ld-cookieselection**

Dauer: 30 Tage

Art: 1st Party

Kategorie: Notwendig

Beschreibung: Speichert die Einstellung der Cookie-Auswahl

Statistik & Analyse:
Cookies dieser Kategorie können über unsere Website von unserem eigenem Statistiktool, oder von Drittanbietern gesetzt werden. Sie dienen dazu, ein nicht personalisiertes, jedoch allgemeines Surfverhalten auf unseren Seiten zu erkennen. Über diese Auswertung können wir das Angebot der Webseite noch besser für unsere Besucher optimieren.

Name: Matomo/Piwik

Dauer: 30 Tage

Art: 3rd Party

Kategorie: Statistik

Beschreibung: Diese Webseite verwendet den Open Source Webanalysedienst Matomo, vormals Piwik, der mit Cookies arbeitet. Die durch Matomo erhobenen Daten werden anonymisiert und zu Analysezwecken in unserem Auftrag auf dem Server der LivingData GmbH gespeichert. Wenn Sie mit der Speicherung und Nutzung Ihrer Daten nicht einverstanden sind, können Sie diese Funktionen hier deaktivieren. In diesem Fall wird in Ihrem Webbrowser ein Opt-Out-Cookie hinterlegt, der verhindert, dass Matomo Nutzungsdaten speichert. Wenn Sie Ihre Cookies löschen, hat dies allerdings zur Folge, dass auch das Matomo Opt-Out-Cookie gelöscht wird. Das Opt-Out muss bei einem erneuten Besuch unserer Seite daher wieder aktiviert werden. Wir weisen jedoch darauf hin, dass im Falle der Nutzung der Opt-Out-Funktion gegebenenfalls nicht sämtliche Möglichkeiten dieser Webseite vollumfänglich nutzbar sind.